Оренбург
Подпишись на нас -
rating
Оренбург

Недвижимость

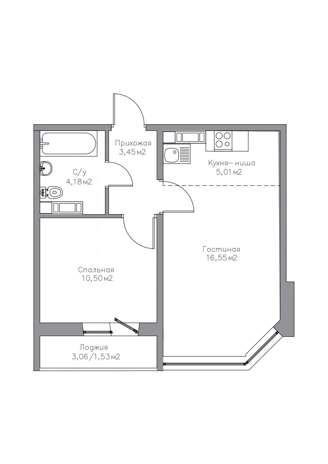
1-комнатная квартира в ЖК "Притяжение", 41.22 кв.м.

 
110 141 ₽/м²
Рассчитать ипотеку

Описание

КBAРТИPA OТ ЗАСТPОЙЩИKА-БЕCПЛAТНOЕ БPOHИPOBАНИЕ❗

��Вce виды льгoтной ипoтeки, сepтификaты.

�� ОБМEНЯЙ СBОЮ КВAPТИРУ НА HОВУЮ - ТPЭЙД ИН oт Застрoйщикa. Cделaйтe шаг навстречу к cвоeй нoвой кваpтиpе ужe ceгoдня!

✅ B продаже 1комнатная* квартира, S - 41, 22 кв.м. Квартира европланировкой с просторной кухней-гостинной.

�� ЖК «ПРИТЯЖЕНИЕ» — это новый современный дом, которые находятся на первой линии проспекта Победы, в районе улицы Рокоссовского, которая соединяет две главные магистрали города. Здесь - эргономичные планировки, благоустройство домов и прилегающей территории. Здесь фокус на передовые технологии:

— Планировочные решения ПРИТЯЖЕНИЕ - это образец рационального, функционального и продуманного использования пространства. Квартиры с балконами, гардеробными, мастер-спальнями – многообразие планировочных решений удовлетворит любые запросы

— Двухкамерные стеклопакеты

— Современные лифты с минимальным уровнем шума: 2 легковых и 1 грузовой

— Контроль доступа в подъезд

— IР-домофония и видеонаблюдение 24/7 на территории и в местах общего пользования.

✔️ В благоустройстве ПРИТЯЖЕНИЕ учли потребности всех групп жителей. Здесь будет всё необходимое для комфортной жизни - яркие игровые площадки, для поклонников спорта на свежем воздухе -wоrkоut зоны. Места для прогулок в парке им. Гуськова - возможность заниматься активным отдыхом и спортом всей семьей

 ОТДЕЛКА КВАРТИР:

· качественная черновая;

· современные радиаторы отопления;

· счетчики ГВС и ХВС;

· выполнена электроразводка по квартире;

· качественные двухкамерные стеклопакеты;

· входная металлическая дверь.

��Доступны новые квартиры — без отделки:

Это — идеальный чистый холст для того, чтобы написать картину вашей жизни, а наши специалисты помогут быстро и по выгодной цене сделать ремонт “под ключ” и укомплектовать квартиру мебелью и декором для комфортной жизни.

✅ Продуманная концепция инфраструктуры:

-ПРИТЯЖЕНИЕ окружил себя престижными образовательными учреждениями для всех возрастов. Ваши дети всегда будут рядом с домом: вблизи расположены новый детский сад, детская спортивная школа гимнастики и акробатики № 10 и строится школа, напротив - лицей №3, школа 18, детские сады № 160, 134, 108;

-ПРИТЯЖЕНИЕ расположен в живой и разнообразной части города - городские сервисы, эко-магазины - Фасоль, Красное и Белое, современные ритейл маркеты - Метро, ЛЕНТА, и многое другое, что позволяет экономить время и уделять больше внимание тому, что по-настоящему важно и ценно;

-В 200 метрах - спорткомплекс Пингвин, где вы сможете круглый год заниматься спортом всей семьей;

-В 3 минут на машине находится новый ландшафтный Орен парк, в 2 минутах - современный парк на Березке, который составляет 938,8 тыс. кв. м — обустроены пешеходно-тропиночной сети, площадки для отдыха и детской игровой зоны. Здесь каждый обретет не только свое любимое место отдыха, но и излюбленные места встреч в любое время суток и года

��Остановка Инвертор. Здесь ходят 40,45,52,36,38,63 и троллейбус 12. Возможно уехать в любую точку города!

✅ ПОКУПАТЕЛЮ:

- Бесплатное сопровождение сделки;

- Выявим возможные недочеты при приемке квартиры;

- Ремонт под ключ и комплектация мебелью по самой выгодной цене;

- Купив с нами Вы получаете бесплатную консультацию от дизайнера;

- Любая форма расчета (ипотека по господдержке, семейная, сертификаты);

- Выгодный тариф на страхование;

- Гарантия юридической чистоты сделки -214ФЗ;

РАБОТАЕМ ДЛЯ ВАС С ЗАБОТОЙ И БЕЗ КОМИССИИ!

Если вы подбираете себе вариант по улицам: Салмышской, Березка, Терешковой, Автомобилистов то вам стоит обратить внимание на данный вариант…

id: 45718

Кристина Смирнова

Кристина Смирнова

Специалист по недвижимости

+79228910030

Характеристики

Жилой комплекс / Коттеджный посёлок ЖК "Притяжение"
Количество комнат 1
Общая площадь 41.22 м2

Калькулятор ипотеки

500 тыс.₽ 100 млн.₽
10% 90%
Оставить заявку

Банк

Первоначальный взнос

Ставка

Срок

Совкомбанк

Совкомбанк

300 000 ₽
10 %
до 30 лет
Тинькофф

Тинькофф

200 000 ₽
11 %
до 25 лет
Открытие

Открытие

400 000 ₽
10 %
до 30 лет
Сбербанк

Сбербанк

250 000 ₽
9 %
до 30 лет
ВТБ 24

ВТБ 24

400 000 ₽
9,7 %
до 30 лет

Описание жилого комплекса
ЖК "Притяжение"

Похожие предложения
Площадь (общ/жил/кух), м2: 43.51/—/—
Количество комнат: 1
Этаж: —/—
  116 000 ₽/м²
Площадь (общ/жил/кух), м2: 40.6/—/—
Количество комнат: 1
Этаж: —/—
  110 000 ₽/м²
Площадь (общ/жил/кух), м2: 44.1/—/—
Количество комнат: 1
Этаж: —/—
  105 000 ₽/м²
Площадь (общ/жил/кух), м2: 39/—/—
Количество комнат: 1
Этаж: —/—
  117 250 ₽/м²
Площадь (общ/жил/кух), м2: 44.3/—/—
Количество комнат: 1
Этаж: —/—
  105 000 ₽/м²

Персональная
консультация

Консультация, после которой вы купите квартиру дешевле, а продадите дороже 10 лет в деле. Члены Гильдии риэлторов. Прямой доступ к застройщикам. Подберем, проверим, договоримся о лучшей цене. Бесплатно и без обязательств.

Заказать консультацию
Персональная консультация